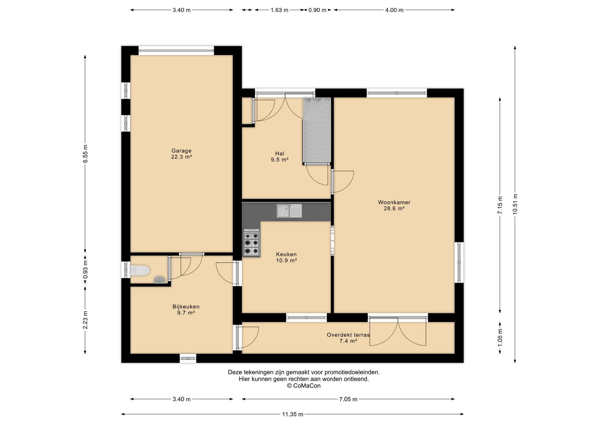
- Woonoppervlakte
- Circa 124 m²
- Perceeloppervlakte
- Circa 20.234 m²
- Bouwjaar
- Gebouwd in 1990
- Aantal kamers
- 3 kamers (2 slaapkamers)
Vrijstaande Woning op Osterbos 3, 5866 CH Swolgen
WONEN IN HET BUITENLEVEN
Deze vrijstaande woning, gebouwd in 1990, met een vraagprijs van € 598.000, biedt u een unieke kans om te genieten van rust, ruimte en natuur. Gelegen in het buitengebied van Swolgen, beschikt dit object over ruim 2 hectare grond, wat het een ideaal thuis maakt voor dierenliefhebbers, paardenhouders en liefhebbers van het buitenleven.
RUIMTE EN COMFORT
Dit ruime object heeft een gebruikersoppervlakte van 269 m². De woning is praktisch ingedeeld met twee royale slaapkamers (met mogelijkheid voor een 3e of 4e slaapkamer) beide met veel daglichttoetreding. De ruime badkamer is voorzien van een bad, douche en toilet. De bijkeuken biedt extra gemak voor huishoudelijke taken. De inpandige garage is om te bouwen naar een kantoorruimte of slaapkamer met ensuite badkamer.
De woning is volledig onderkelderd, voor extra opslag- en gebruiksruimte. De woning, met energielabel C, is voorzien van houten kozijnen met dubbel glas, wat bijdraagt aan een comfortabele en energiezuinige woonomgeving.
Het interieur van de woning is gedateerd maar de woning verkeerd in een uitstekende bouwkundige staat en is goed onderhouden.
GENIETEN VAN BUITEN
De tuin, gelegen op het zuidwesten, biedt optimale privacy en is een ware oase van rust. De terrasoverkapping van 10 m² maakt het mogelijk om het hele jaar door van het buitenleven en de avondzon te genieten.
Voor de dierenliefhebbers is er een bijzondere toevoeging: een herten ren met twee herten en een buitenverblijf. Deze faciliteit maakt het pand bijzonder geschikt voor mensen met een passie voor dieren en het houden van vee. Er is ook voldoende ruimte voor het houden van paarden.
RUIMTE VOOR PASSIE EN HOBBY’S
Met een totaal aan overige inpandige ruimte van 108 m² biedt deze woning volop mogelijkheden voor het inrichten van hobbyruimtes of extra opslag. De combinatie van wooncomfort, praktische indeling en uitgebreide buitenruimte maakt deze woning tot een veelzijdig en aantrekkelijk geheel. Het perceel heeft deels de bestemming ‘Wonen’ en deels ‘Agrarisch met waarden’.
INTERESSE?
Heeft u interesse in deze unieke woning en wilt u de mogelijkheden zelf ervaren? Neem dan contact met ons op voor meer informatie of om een bezichtiging in te plannen. Wij staan klaar om u te helpen bij het verwezenlijken van uw woondromen.
SWOLGEN
De woning ligt aan een rustige weg in het buitengebied (Osterbos) van het dorp wat grenst aan een uitgestrekt bosgebied waar u uren kunt wandelen en mountainbiken.
U bereikt binnen 7 minuten de A73.
Op 4 minuten afstand is een grote supermarkt.
Basisonderwijs, kinderdagverblijf, sportverenigingen, horeca zijn in Swolgen aanwezig.
Voortgezet onderwijs, speciaal onderwijs, sport, cultuur, winkels en horeca zijn in het nabij gelegen Horst goed vertegenwoordigd en maken het wonen op deze plek aantrekkelijk voor jong en oud.
Er is een buslijn aanwezig en via het treinstation Venray-Oostrum of Horst-Sevenum zijn Venlo , Nijmegen en Eindhoven goed bereikbaar.
BIJZONDERHEDEN
• vraagprijs € 598.000
• gebouwd in 1990
• ruim 2 hectare grond
• inpandige garage 22 m2
• volledig onderkelderd
• houtenkozijnen met dubbel glas
• woonoppervlak 124 m2
• overig inpandige ruimte 108 m2
• terrasoverkapping 10 m2
• tuin op het zuidwesten met optimale privacy
• energielabel C
• herten ren met 2 herten met buitenverblijf
Overdracht
- Vraagprijs
- € 598.000 k.k.
- Status
- Verkocht
Bouw
- Object type
- Eengezinswoning, vrijstaande woning
- Soort bouw
- Bestaande bouw
- Bouwjaar
- 1990
- Soort dak
- Zadeldak bedekt met pannen
Oppervlakte en inhoud
- Woonoppervlakte
- 124 m²
- Perceeloppervlakte
- 20.234 m²
- Inhoud
- 812 m³
- Externe bergruimte
- 27 m²
- Gebouwgeb. buitenruimte
- 10 m²
Indeling
- Aantal kamers
- 3 kamers (2 slaapkamers)
- Aantal badkamers
- 1 badkamer en 1 apart toilet
- Badkamervoorzieningen
- Douche, ligbad, toilet, en wastafel
- Aantal woonlagen
- 2 woonlagen, een vliering, en een kelder
- Voorzieningen
- Natuurlijke ventilatie en TV kabel
Energie
- Energielabel
- C
- Isolatie
- Volledig geïsoleerd
- Verwarming
- Cv-ketel
- Warm water
- Cv-ketel
- Cv ketel
- Nefit ecomline hr (gas gestookt combiketel uit 2004, eigendom)
Buitenruimte
- Ligging
- Aan rustige weg, buiten bebouwde kom, in bosrijke omgeving, landelijk gelegen en vrij uitzicht
- Tuin
- Tuin rondom
Bergruimte
- Schuur / berging
- Vrijstaande stenen berging
- Voorzieningen
- Elektra
Garage
- Soort garage
- Inpandig
- Capaciteit
- 1 auto
- Voorzieningen
- Elektra en stromend stromend water
- Isolatie
- Volledig geïsoleerd
Parkeergelegenheid
- Soort parkeergelegenheid
- Op eigen terrein en openbaar parkeren
Energieverbruik in Swolgen
Energielabel deze woning
Energielabel C
Publicatie energielabel:
Stroomverbruik per jaar
(Gemiddelde vrijstaande woning in Swolgen)
Gasverbruik per jaar
(Gemiddelde vrijstaande woning in Swolgen)
* Cijfers zijn afkomstig van het CBS en bedoeld als indicatie en kunnen verschillen voor deze woning
Indicatie hypotheeklasten
Eigen inleg:
Spaargeld / overwaarde
Rente:
Laagste 10-jaars rente
Laagste 10-jaars rente
2,78% - Centraal Beheer - NHG
3,04% - Centraal Beheer - 80%
Laagste 20-jaars rente
3,29% - Centraal Beheer - NHG
3,52% - Centraal Beheer - 80%
Laagste 30-jaars rente
3,41% - Centraal Beheer - NHG
3,7% - Argenta - 80%
Hypotheek:
Bruto maandlasten: € 0 p/m
Netto maandlasten: € 0 p/m
Hoe berekenen we dit?
Het rentepercentage is gebaseerd op de laagste 10 jaars vaste rente voor één hypotheekdeel. De vermelde rente (3.04% zonder NHG) is gecontroleerd op 27-04-2026. Deze berekening is gebaseerd op een annuïteitenhypotheek die volledig wordt afgelost, waarbij de maandlasten gedurende de gehele looptijd gelijk blijven. De werkelijke rente en netto maandlasten kunnen variëren, afhankelijk van uw persoonlijke situatie en de hypotheekverstrekker. Raadpleeg een financieel adviseur voor een nauwkeurige berekening en advies. Aan deze berekening kunnen geen rechten worden ontleend; het dient enkel als indicatie.
Documentatie
Kadastrale kaart
Leefomgeving
Plattegronden PDF
Bezichtiging
Bod uitbrengen
Waardebepaling
Zoekopdracht
Alles downloaden
Zonnegrenzen bekijken
Op de kaart
Inwoners in Swolgen
Cijfers voor postcodegebied 5866
- Totaal aantal inwoners
- 1260 inwoners
- Mannen
- 51%
- Vrouwen
- 49%
Inwoners in Swolgen
Cijfers voor postcodegebied 5866
- tot 15 jaar
- 13%
- 15 tot 25 jaar
- 13%
- 25 tot 35 jaar
- 20%
- 45 tot 65 jaar
- 35%
- 65 en ouder
- 19%
Huishoudens in Swolgen
Cijfers voor postcodegebied 5866
- Eenpersoons zonder kinderen
- 24%
- Meerpersoons zonder kinderen
- 39%
- Huishoudens zonder kinderen
- 63%
Huishoudens in Swolgen
Cijfers voor postcodegebied 5866
- Huishoudens met één kind
- 5%
- Huishoudens met meerdere kinderen
- 32%
- Huishoudens met kinderen
- 37%
Woningen in Swolgen
Cijfers voor postcodegebied 5866
- Woningen voor 1945
- 17%
- Woningen tussen 1945 en 1965
- 16%
- Woningen tussen 1965 en 1975
- 19%
- Woningen tussen 1975 en 1985
- 15%
- Woningen tussen 1985 en 1995
- 13%
Woningen in Swolgen
Cijfers voor postcodegebied 5866
- Woningen tussen 1995 en 2005
- 10%
- Woningen tussen 2005 en 2015
- 5%
- Woningen na 2015
- 2%
- Huurwoningen
- 10%
- Koopwoningen
- 90%
Overige in Swolgen
Cijfers voor postcodegebied 5866
- Gemiddelde WOZ waarde
- € 282.000,-
- Personen onder de 65 met uitkering
- Niet beschikbaar
Overige in Swolgen
Cijfers voor postcodegebied 5866
- Adressen per km²
- 138
- Stedelijkheid (schaal 1 op 5)
- 20%
Korte feiten over Swolgen
Swolgen (plaatselijk uitgesproken als Zwollege) is een kerkdorp in de gemeente Horst aan de Maas, in het noorden van de Nederlandse provincie Limburg. Het dorp heeft ruim 1.290 inwoners. Tot 2010 hoorde het bij de voormalige gemeente Meerlo-Wanssum en tot 1969 bij de voormalige gemeente Meerlo.
CoMaCon Makelaardij
Indien u vragen heeft of u wilt een bezichtiging inplannen, dan kunt u gebruik maken van het formulier hiernaast. Er zal daarna op korte termijn contact met u worden opgenomen.
Contact opnemen
Comacon Makelaardij
Bij Comacon Makelaardij krijgt u meer dan alleen een makelaar. Dankzij onze unieke combinatie van vastgoedervaring en bouwkundige achtergrond, bieden wij een totaalpakket dat verder gaat dan de standaard dienstverlening.
Wat ons onderscheidt:
Waardebepaling zonder kosten
We starten met een gratis inschatting van de waarde van uw woning – zonder verplichtingen.
Persoonlijke benadering en rust in het proces
Uw wensen staan centraal. We nemen uitgebreid de tijd om uw situatie te begrijpen en begeleiden u op een ontspannen manier.
Strategisch aan- en verkoopplan
Geen standaard aanpak, maar een zorgvuldig op maat gemaakte strategie om het maximale uit uw transactie te halen.
Eerlijkheid als kernwaarde
Wij werken transparant en hechten sterk aan betrouwbaarheid en ethisch handelen.
Kennis van zaken
U kunt rekenen op professionele begeleiding van een ervaren expert die met u meedenkt.
Gedetailleerde werkwijze
Onze processen zijn verfijnd tot in de kleinste details, zodat u profiteert van een gestroomlijnde afhandeling.
Zorg voor de koper
Wij vinden het belangrijk dat ook de koper goed wordt begeleid, zodat de gehele transactie soepel en verantwoord verloopt.
Grondige bezichtigingen
Onze rondleidingen zijn helder, informatief en afgestemd op de behoeften van potentiële kopers.
Passende courtage
Onze tarieven worden afgestemd op het object, zodat u een eerlijke prijs betaalt voor onze dienstverlening.
Opstartkosten
Naast de courtage rekenen wij opstartkosten voor de voorbereidingen en presentatie van uw woning.
Aankoopbegeleiding cadeau bij verkoopopdracht
Geeft u ons het vertrouwen voor de verkoop? Dan helpen wij u kosteloos bij het kopen van een nieuwe woning.
Ontdek het verschil van Comacon Makelaardij
Wij zetten ons volledig in voor het beste resultaat bij uw aan- of verkoop. Neem vrijblijvend contact met ons op en ervaar zelf onze betrokken en professionele aanpak.
Uw succes is ons uitgangspunt.
Nieuwste reviews
-
Henk Thijssen
Vakkundige man weet waar hij over praat, had ons app zeer snel verkocht , van harte aanbevolen, nogmaals dank voor de prettige en speciale a...
-
Dionisiusstraat 15
Geweldige makelaar neemt veel tijd en een goede uitleg prettig in omgang zeerAan te bevelen als wij een makelaar nodig hebben wordt het weer...
-
Mariushof 26
Bij de aankoop van onze nieuwe woning stond Theo nog aan de andere kant, bij de verkopende partij. Wij hebben het contact als kopers al dusd...